Thiết kế hệ thống điện và thông tin liên lạc dự án khu đô thị Phú Mỹ Hưng - Tỉnh Cần Thơ
Thiết kế hệ thống điện và thông tin liên lạc dự án khu đô thị Phú Mỹ Hưng - Tỉnh Cần Thơ
Thiết kế hệ thống diện dự án khu đô thị Phú Mỹ Hưng - Tỉnh Cần Thơ
- Tên dự án: Khu đô thị mới Hưng Phú - lô số 3D, phường Hưng Phú, quận Cái Răng, thành phố Cần Thơ.- Nhóm dự án, loại, cấp, quy mô công trình: Công trình hạ tầng kỹ thuật, dân dụng cấp III, dự án nhóm B.
- Quy mô khu đất thực hiện dự án: 123.914 m2
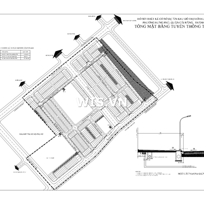
* Mặt bằng thiết kế điện tổng thể và thông tin liên lạc

* Mặt bằng chi tiết thiết kế hệ thống điện và thông tin liên lạc dự án khu đô thị Phú Mỹ Hưng - Tỉnh Cần Thơ
* Mặt bằng chi tiết thiết kế đi ngầm hệ thống đường điện và thông tin liên lạc dự án khu đô thị Phú Mỹ Hưng - Tỉnh Cần Thơ
Hãy liên hệ ngay với Minh Tâm, chúng tôi sẽ đưa ra những tư vấn thiết thực nhất cho công trình của Bạn. Minh Tâm luôn luôn lắng nghe và thấu hiểu những lo lắng của khách hàng hãy gọi số Hotline 0911 112 588 để được tư vấn.


* Mặt bằng chi tiết thiết kế đi ngầm hệ thống đường điện và thông tin liên lạc dự án khu đô thị Phú Mỹ Hưng - Tỉnh Cần Thơ


Hãy liên hệ ngay với Minh Tâm, chúng tôi sẽ đưa ra những tư vấn thiết thực nhất cho công trình của Bạn. Minh Tâm luôn luôn lắng nghe và thấu hiểu những lo lắng của khách hàng hãy gọi số Hotline 0911 112 588 để được tư vấn.
—————————————————————–
MỌI THÔNG TIN CHI TIẾT LIÊN HỆ
CÔNG TY TNHH THIẾT BỊ VÀ CÔNG NGHỆ MINH TÂM (MITACOM)
Địa chỉ trụ sở chính: 26/73 Tây Trà – Trần Phú - Hoàng Mai – Hà Nội
Nhà máy sản xuất: Số 8 - đường Trần Phú - P.Mộ Lao - Q.Hà Đông - TP.Hà Nội
Website: www.mitacom.vn - www.komodo.vn - www.wis.vn - www.thietbiaz.vn
Điện thoại: (+84) 243.643.9187 Hotline: 0911.112.588 - 0979.676.622
MỌI THÔNG TIN CHI TIẾT LIÊN HỆ
CÔNG TY TNHH THIẾT BỊ VÀ CÔNG NGHỆ MINH TÂM (MITACOM)
Địa chỉ trụ sở chính: 26/73 Tây Trà – Trần Phú - Hoàng Mai – Hà Nội
Nhà máy sản xuất: Số 8 - đường Trần Phú - P.Mộ Lao - Q.Hà Đông - TP.Hà Nội
Website: www.mitacom.vn - www.komodo.vn - www.wis.vn - www.thietbiaz.vn
Điện thoại: (+84) 243.643.9187 Hotline: 0911.112.588 - 0979.676.622
Liên hệLiên hệ